Luciana
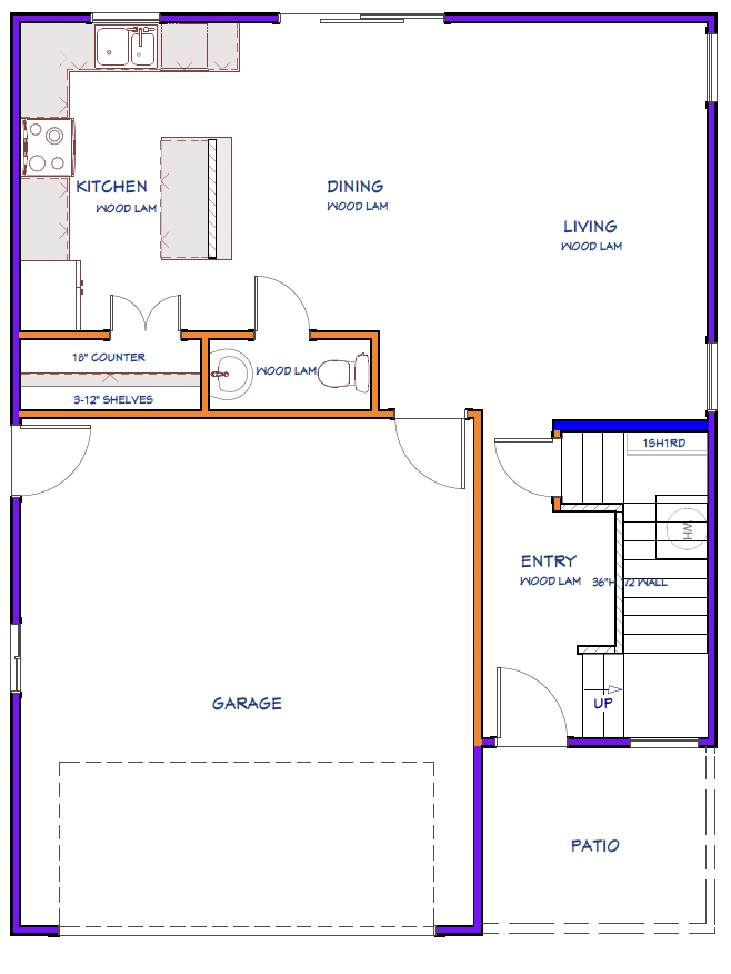
About This FLoor Plan
1,460 Sq.Ft.
3 Bed
2 1/2 Bath
Plan Features
◦ Open-concept floor plan
◦ Slab home
◦ 9 ft. ceilings in main living
◦ Stainless steel appliances
◦ Jack and Jill bathroom
◦ Great master suite complete with a walk-in shower and large walk-in closet
◦ 1-year builder warranty
Floor Plan Levels
Main Floor
1,460
Sq. Ft.
2 1/2
Bath
3
Bedrooms
Features
- Open concept living area
- Modern kitchen with island
- Half bath for guests
- Energy efficient windows
×
Additional Information
Explore the Luciana Plan
Download The Plan
Download/View/Print The Luciana Flyer
NEW HOME SPECIALIST
Let’s Get Started
Tyson Bean
Broker – License ID: BR 00228875
(316) 461-9088
tyson@pinnacleict.com
Fill out the form, click “submit” at the end and we’ll be in touch as soon as possible! Required fields indicated with (*). Thank you and we look forward to getting to know you!
